Här hittar du din kommande hyreslägenhet

På denna här sida publicerar vi lediga hyreslägenheter i Kungsör. Du som hyresgäst eller blivande hyresgäst kan också välja att ställa dig i kö. Längre ner på sidan kan du göra en intresseanmälan på den typ av hyresrätt du önskar hyra. När något blir ledigt hör vi av oss till dig.

Ledig lägenhet Kungsör
Lägenhet att hyra - Ledig lägenhet Kungsör
Badrum i lägenhet Kungsör

Ledig lägenhet

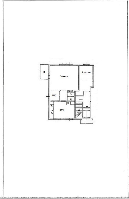
3:a på 75 kvm hyra 9.346 kr, Kaptensgatan 3C i Kungsörs kommun.


Hyra: 9.346kr

 Yta: 75 kvm

Ingår: Värme, vatten, diskmaskin, tvättmaskin, uteplats, förråd, parkeringsplats

Ingår ej: El


Denna lägenhet är nyproducerad 2025 och är i ett mycket bra skick. Se bilder nedan.

 Inflyttning 1 juni 2026 eller enligt överenskommelse.

Lägenhet att hyra - Ledig lägenhet Kungsör


Lägenhet att hyra - Ledig lägenhet Kungsör


Lägenhet att hyra - Ledig lägenhet Kungsör


Lägenhet att hyra - Ledig lägenhet Kungsör


Intresseanmälan - Bostadskö

Här kan du fylla i dina önskemål om vilken typ av lägenhet du önskar hyra av oss.
När något blir ledigt kommer vi att höra av oss till dig. Viktigt att du uppfyller och läser igenom vår uthyrningspolicy längre ner på sidan innan du fyller i din ansökan.
Namn E-post Telefonnummer
Typ av lägenhet
Bostadskö: 1:a - 25-35 kvm
Bostadskö: 2:a - 60-65 kvm
Bostadskö: 3:a - 70-80 kvm
Bostadskö: 3:a - 85-90 kvm
Tillval - Önskemål
Parkering från 200 kr / månad
Förråd från 50 kr / månad
Tvättmaskin från 250 kr / månad
Torktumlare från 250 kr / månad
Meddelande Jag accepterar reglerna och villkoren och integritetspolicyn Skicka in 

Vår uthyrningspolicy

Här kan du läsa om de kriterier som finns för att kunna få en lägenhet hos Fastigroup AB.

Ledig hyresrätt hos Fastigroup AB
Det viktigaste för oss är att du som hyresgäst trivs hos oss och med dina grannar - så bra att du alltid vill vara vår hyresgäst.
  • Sökande måste ha fyllt 18 år för att få teckna hyresavtal.

  • Sökande måste ha en stadigvarande inkomst per år, på minst 2,5 gånger årshyran för den aktuella lägenheten man sökt. Som inkomst räknas inkomst av arbete, även visstidsanställning, arbetslöshetskassa, pension, sjukersättning, aktivitetsersättning och studiemedel.

  • Sökande ska inte ha några betalningsanmärkningar. (Individuell bedömning görs alltid efter en UC).

  • Sökande ska ha goda vitsord från tidigare boende och vara en god granne.

  • Antalet personer som ska bo i lägenheten skall vara rimligt i förhållande till lägenhetens storlek.

  • Lägenheten upplåts som huvudsaklig bostad till hyresgästen, och hyresgästen ska vara folkbokförd i lägenheten.

Hyresbostad renoverad, tryggt boende Lediga lägenheter - Eskilstuna, Västerås, Köping, Arboga, Örebro Privat fastighetsägare i Mälardalen bo tryggt Hitta hyresrätt Hyresvärd i Kungsör Ledig lägenhet i Kungsör

Lediga bostäder i Kungsör, Bostad Kungsör, Privat fastighetsägare, Eskilstuna/Västerås/Köping/Arboga/Örebro, Hyresrätt, Hyresfastighet, Boende Kungsör, Hyresbostad i Kungsör, Bo i Kungsör, Leva i Kungsör, Naturnära boende, Landsbygden, Tryggt bostadsområde, Trygga Bostäder, Fastigroup AB